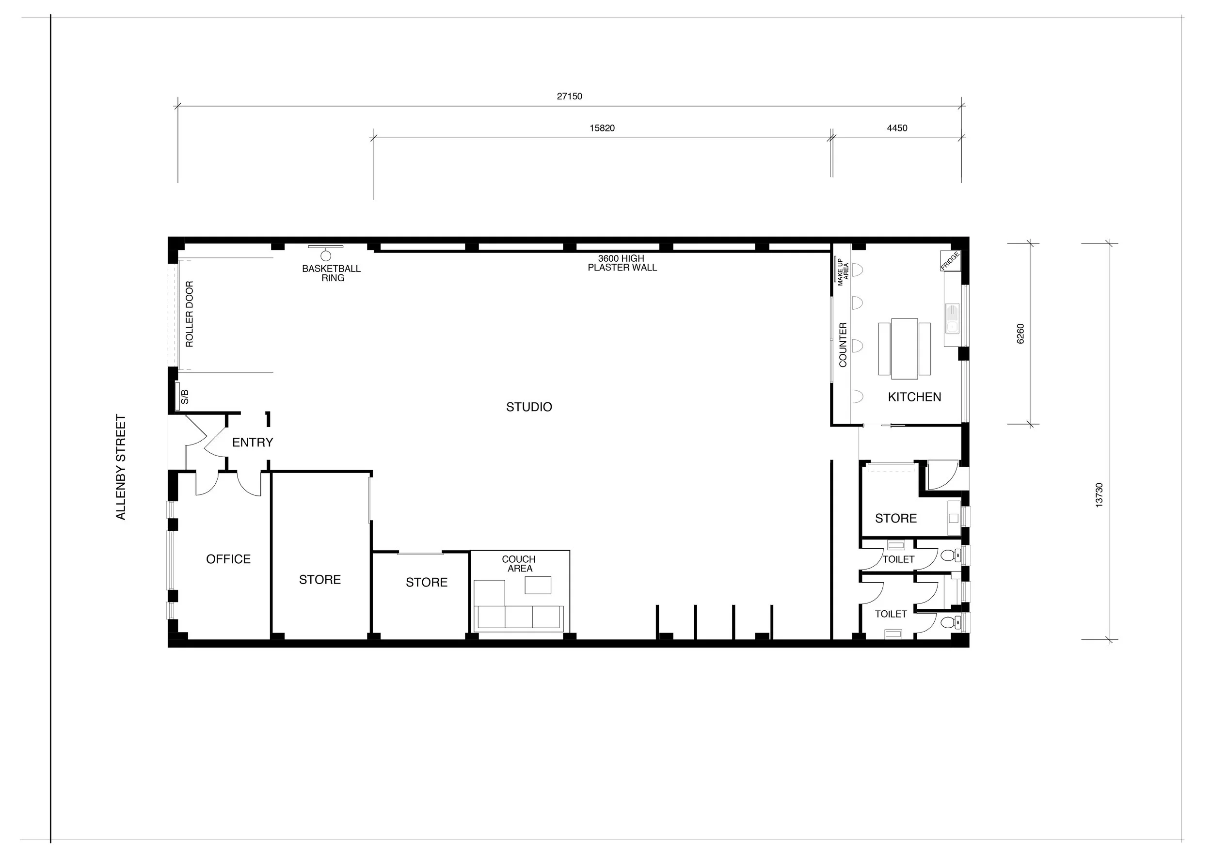
Mountain FLOOR PLANA LARGE, VERSATILE PHOTOGRAPHIC STUDIO In Coburg NorthMELBOURNE. → Download Studio Info PDF